PMOS管防反接

防反接原理:
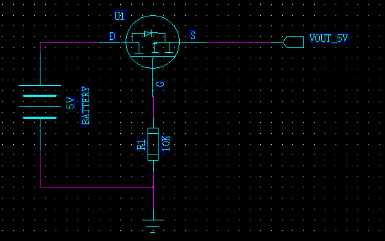
電源正常接時,5V電壓從U1的D極經過體二極管到達S極,因為有一個壓降,S極電壓約4.3V,Ugs=-4.3V,所以MOS管導通,MOS管導通之后,D和S之間的導通壓降很小,體二極管也就截止了,所以輸出VOUT_5V≈5V
當電源接反時,此時G極電壓為5V,Ugs>0,所以PMOS管不會導通,也就保護了后端電路。
使用此電路有幾個點需要注意:
1、這個電路適用于低壓的場合,MOS管的導通內阻很小(小的一般是mΩ級別),所以輸出電壓幾乎輸入電壓,如果用二極管防反接,會有一個比較大的導通壓降,之前寫過二極管防反接保護電路,傳送門:二極管防反接電路
2、MOS管選擇合適的導通電壓,如果輸入電壓很低,MOS管可能無法導通,而是直接走的體二極管,導致輸出電壓更低。
3、5V輸入端可以加MLCC濾波,切記不能加有極性的器件,防止反接時損壞。
又有人會問了,為什么上圖中的D和S方向和我們平時用的不一樣,下圖是我們經常用的PMOS管開關電路。

我們來分析一下原理:電源正接時,Ugs<0,MOS管導通,D極電壓就等于5V;當5V電源反接時,S=0,G=5V,Ugs>0,MOS管是關閉狀態的,看到這里,似乎是合理,也能防止反接,但是S=0時,PMOS的體二極管會導通,會將VOUT_5V鉗位在0.7V左右,那又有人說了,為什么MOS管的體二極管會導通,S和D都為0啊,那是因為在實際電路中,VOUT_5V后端可能有很多負載,如果有串電流,體二極管可能就會導通,這就是為什么S和D需要調換。
NMOS管防反接

防反接原理:
當5V電源正接時,MOS管的G=5V,D=0V,MOS管的體二極管會導通,將S電壓鉗在0.7V左右,需要注意,圖中的R2看做是一個負載,并不單單是一個電阻,Ugs>0,所以MOS管導通,MOS管導通之后,因為導通壓降很低,體二極管截止了,S電壓等于0V,負載正常工作。
當5V電源反接時,G=0,S=0,Ugs=0,MOS管是截止狀態,并且體二極管也不通,電路中是沒有電流回路的,保護了后端負載。
電話:18923864027(同微信)
QQ:709211280
〈烜芯微/XXW〉專業制造二極管,三極管,MOS管,橋堆等,20年,工廠直銷省20%,上萬家電路電器生產企業選用,專業的工程師幫您穩定好每一批產品,如果您有遇到什么需要幫助解決的,可以直接聯系下方的聯系號碼或加QQ/微信,由我們的銷售經理給您精準的報價以及產品介紹

